ΕΕΛ ΑΡΓΟΥΣ ΟΡΕΣΤΙΚΟΥ
ΚΥΡΙΟΣ ΕΡΓΟΥ
ΔΗΜΟΣ ΑΡΓΟΥΣ ΟΡΕΣΤΙΚΟΥ
ΑΝΑΔΟΧΟΣ
THALIS E.S. S.A.
ΠΕΡΙΦΕΡΕΙΑ
Περιφέρεια Δυτικής Μακεδονίας
ΠΟΡΕΙΑ ΕΡΓΟΥ
Η σύμβαση αφορά την μελέτη, κατασκευή και 6μηνη δοκιμαστική λειτουργία της Εγκατάστασης Επεξεργασίας Λυμάτων Άργους Ορεστικού.

Ο εξυπηρετούμενος πληθυσμός ανέρχεται σε 8.800 ι.κ για την 20ετία και σε 9.950ι.κ για την 40ετία.
Εκτός των παραπάνω στην εργολαβία περιλαμβάνονται και η σύνδεση του συγκροτήματος προεπεξεργασίας με τον καταθλιπτικό αγωγό προσαγωγής των λυμάτων και η διασύνδεση του φρεατίου εξόδου – δειγματοληψίας της Ε.Ε.Λ. με τον αγωγό διάθεσης.

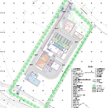
Το σύστημα επεξεργασίας λυμάτων αποτελείται από τις εξής επιμέρους κύριες μονάδες:
- Φρεάτιο εισόδου-υπερχείλισης-Μέτρηση παροχής εισόδου
- Compact συγκρότημα προεπεξεργασίας λυμάτων
- Φρεάτιο μερισμού βιολογικής επεξεργασίας
- Δεξαμενές βιολογικής επεξεργασίας (αερισμού, νιτροποίησης και απονιτροποίησης)
- Φρεάτιο μερισμού δεξαμενών ΜΒR
- Μονάδα χημικής αποφωσφόρωσης
- Δεξαμενές MBR
- Αντλιοστάσιο ανακυκλοφορίας νιτρικών-ιλύος
- Αντλιοστάσιο περίσσιας ιλύος
- Μονάδα χλωρίωσης και αποχλωρίωσης των λυμάτων
- Δεξαμενή βιομηχανικού νερού
- Μονάδα μεταερισμού- Φρεάτιο δειγματοληψίας-Φρεάτιο εξόδου
- Αναδευόμενη δεξαμενή αποθήκευσης ιλύος
- Μονάδα μηχανικής επεξεργασίας της λάσπης
- Ανακυκλοφορία στραγγιδίων
Οι παραπάνω λειτουργικές μονάδες συμπληρώνονται και με τα παρακάτω:
- Δίκτυο οδοποιίας (εσωτερική και εξωτερική)
- Δίκτυα διανομής ηλεκτρικής ενέργειας μέσης τάσης, ισχυρών και ασθενών ρευμάτων εξωτερικού φωτισμού
- Σύστημα ελέγχου και αυτοματισμών του έργου, όργανα on-line- Αντικεραυνική προστασία-Θεμελιακή γείωση
- Δίκτυα ύδρευσης, αποχέτευσης- στραγγιδίων
- Δίκτυα βιομηχανικού νερού –άρδευσης- πυρόσβεσης πυρασφάλειας
- Δίκτυο αποχέτευσης ομβρίων
- Διαμόρφωση και περίφραξη χώρου – Πύλη εισόδου – Έργα πρασίνου
- Οι κτιριακές εγκαταστάσεις περιλαμβάνουν:
- Κτίριο Διοίκησης
- Κτίριο Προεπεξεργασίας
- Κτίριο Φυσητήρων- Εξυπηρέτησης ΜΒR
- Οικίσκος λεπτοεσχάρωσης
- Κτίριο Χημικών
- Κτίριο Επεξεργασίας ιλύος
- Κτίριο Ενέργειας